j9·九游会游戏网站

防爆设备
  • 防爆直线振动筛
防爆直线振动筛

应用行业:BSZF系列防爆直线筛广泛应用于冶金、建材、化工、耐火材料、水泥、粮食、食品等行业,可用作对各种物料不同程度的筛选分级作业。

产品优势

● 对各种物料进行分级筛选,经筛分后的颗粒大小均匀、筛分精度高。

● 一般单台设计为1-5层不等,可根据不同需求选择所需层数。

● 具有维护方便、维修概率相对较低优势。

● 采用角度可调控的激振源,筛的净;可多层设计,筛的多;可负压抽空,环境好。

● 对粉状、颗粒状物料的筛选和分级,有独特的效果。

● 独特的装网结构,无混级、串料现象。

● 全封闭结构,粉尘不溢散,自动排料。

应用物料

应用范围:硅材料、食品行业、医药行业、化工行业等

应用物料:多晶硅、熔融硅微粉、球形硅微粉、二氧化硅、砂糖、盐、味精、鸡精、葡萄糖、氨基酸、山梨酸钾、面包屑、冻干食品、椰果粒、冷冻饺子、颗粒药丸、微丸、中药饮片、铁粉、铝粉、铅粉、铜粉、合金粉、电解铜粉、耐火材料、钢丸、氧化铝、金属冶金粉末、碳酸氢纳(纯碱)等。

防爆性能
防爆标识及含义

产品的防爆性能符合GB 25286.1─2010 《爆炸性环境用非电气设备 第1部分:基本方法和要求》及GB 25286.5-2010 《爆炸性环境用非电气设备 第5部分:结构安全型“c”》要求制定。防爆标志为Ex c IIB T4 Gb + Ex d IIB T4 Gb 适用于21区/22区,存有可燃性气体的爆炸性场所。防爆标志为Ex c ⅢB T4 Db + Ex tD A21 IP65 T130℃适用于21区/22区,存有可燃性粉尘的爆炸性场所。

技术参数

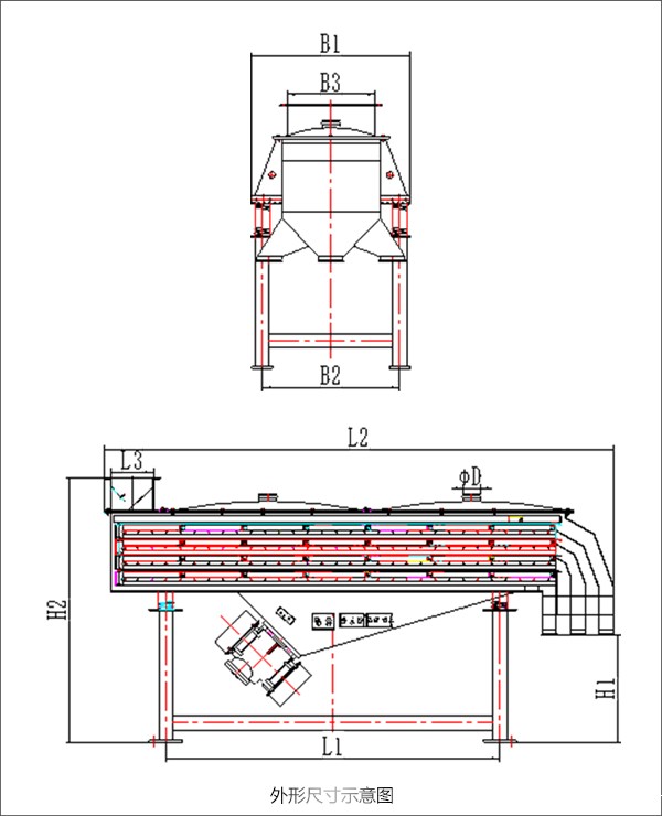
防爆直线筛外形示意图

外观尺寸参数表

型号 B1(mm) B2(mm) B3(mm) L1(mm) L2(mm) L3(mm) H1(mm) H2(mm) D(mm)
BSZF-525 900 780 500 1900 2900 240 600 1500 100
BSZF-1025 1450 1010 860 1800 2935 260 600 1720 130
BSZF-1030 1155 1010 860 2207 3380 260 600 1640 130
BSZF-1040 1155 1010 860 3050 4380 260 700 1740 130
BSZF-1235 1600 1220 1100 2486 3990 260 610 1745 150

技术参数表

型号 单层筛面面积(m2) 配套电机 激振力(kN) 电压(V) 功率(kW)
BSZF-525 1.25 YBZ-1410-6 10 380 0.75*2
BSZF-1025 2.5 YBZ-1620-6 20 1.5*2
BSZF-1030 3.0 YBZ-1930-6 30 2.2*2
BSZF-1040 4.0
BSZF-1235 4.2
热品推荐 / Hot product
防爆旋振筛
防爆脉冲除尘器
Baidu
ag8九游会j9